CAFE

일반 음식점

신방동 돈두레 일반 음식점 인테리어공사//인테리어 도면//3D시물레이션 (예담인테리어)천안인테리어//아산인테리어//리모델링//공사 전문업체

작성자Jimmy Kang|작성시간10.01.27|조회수137 목록 댓글 0

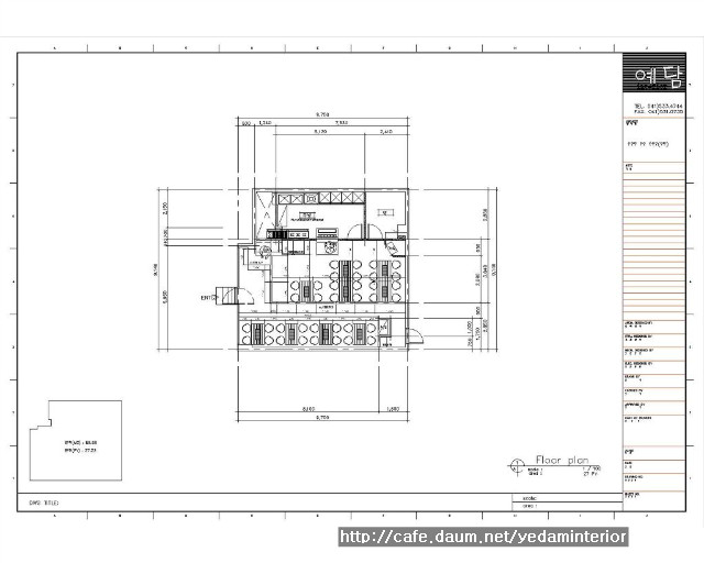
 공사명 : 천안 신방동 돈두레 (일반음식점)인테리어공사//예담인테리어//

                                      천안 인테리어 // 아산인테리어 리모델링 전문

 면적 : 89.98㎡/ 27.22평

 공사기간: 15일 소요

 

 

평면도 설계

 

3D시물레이션 계획 -1

 

3D시물레이션 계획 -2 

3D시물레이션 계획 -3

 

3D시물레이션 계획 -4 

다음검색
현재 게시글 추가 기능 열기

댓글

댓글 리스트
맨위로

카페 검색

카페 검색어 입력폼