CAFE

30평대 시공사진

네츄럴 화이트가 돋보이는 신촌 이편한세상 34평 인테리어

작성자light056|작성시간17.07.06|조회수1,101 목록 댓글 0



안녕하세요

오늘은 내츄럴 화이트가 돋보이는


34평 아파트 인테리어

신촌 이편한세상 아파트 인테리어입니다.

오늘 소개해드를 현장에는

유쾌한 부부와 귀여운 남자아이가

머무를 공간압니다.


리모델링? 하면 오래된 아파트를

새아파트처럼 수리하는 모습이

상상되시죠?


오늘 보여드릴 공간은

너도나도 똑같은 새아파트를

우리가족만의 보금자리로

꾸몄습니다




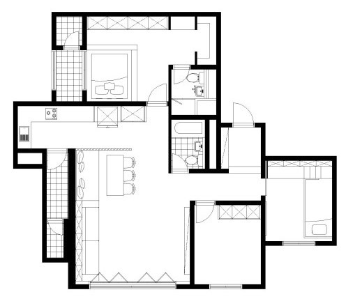
신촌 이편한세상 34평

새아파트 인테리어 평면도 입니다

숨어있는 주방에 파티션을 넣어서

길게 만들어 주고 부부침실로

통하는 동선도 숨겼습니다.


자연스럽게 다이닝공간과 거실공간을

합쳐저서 독특한 구조가 탄생했어요


그럼 주방 비포사진부터 볼까요?

화이트톤으로 깨끗하고 깔끔하지만

수납양이 너무 작고

기둥벽에 붙은 아일랜드는 거실에서

봤을때도 눈에 거슬리는 존재였습니다.





다행이도 요즘 새아파트에 많이

시공되어 있는

누런색~의 싱크대가 아니여서

싱크대는 그대로 사용하고

아일랜드는 철거를 해줍니다





대신 싱크대 부분을 부분적으로

수정했습니다.

비포 사진의 냉장고 자리 상단을 보시면

공간이 비워져 있는것이보이시죠?

예쁘라고 비워놓았겠지만

약간 어설퍼 보입니다^^;;

명절때쓰는 큰 후라이펜이나

캠핑갈때나 쓰는 도구들을 넣을 수있도록

이부분을 수납장으로 만들어 주었구요

2개의 냉장고를 수납하고 남은

공간에 세탁기와 오븐 예쁜컵들을

수납할수있는 공간을 만들었습니다





깊이가 깊지 않은 삼성쉐프컬렉션 냉장고를

선택한건 정말 신의한수입니다~

예쁘게 고쳐놓고 투박한 냉장고가 들어왔다면

정말 이상졌을꺼예요

사진에는 파티션 뒤로 살짝 보여지네요





아일랜드를 철거한 부분은

밝은 우드칼라로

파티션을 만들어주었습니다.

이때, 시선을 차단하지 않아

갑갑하게 느껴지지 않도록 했습니다





파티션을 활용해 반대쪽으로는

식탁이자리잡았습니다.

거실과 다이닝이 한눈에보이는

연결된 공간이기 때문에

소파 따로 식탁 따로 두지않고

벤치형 소파와 식탁으로 한번에

연결해주었습니다.





시각벤치 부분은

화이트 패널과 선반을 활용해

코디월을 만들었습니다.

어린 아들과 함께 거실소파에서

책을볼때 아이가 좋아하는 책을

손쉽게 꺼낼 수 있도록 소파뒤를

책장과 수납장으로 만들었습니다





목공사중 집주인부부가

벌써 예쁨이 보인다고

너무 좋아하셨던 모습이 떠오릅니다





소파의 반대편은 TV를 놓는

아트월 공간입니다

베이지색 타일로 마감되어

안정적이긴 하나 화사하고

밝은 집을 꾸밀때 방해가 됩니다.

깨끗하게 벽지로 바꿔주고

주방 우드셔터와 같은 밝은 나무색으로

선반형 아트월을 만들어 주었습니다.





사랑스러운 아이사진도 올리고

아기자가한 소품도 올려줍니다.

저녁에는 천정조명을 끄고

아트월에 간접조명만 켜놔도

분위기 넘치는 가족실이 됩니다





원단이 주는 고급스러운 느낌대신

포근하고 깔끔한 우드셔터를

선택했습니다.

우드셔터는 사선모양의 살대가 있어

시선은 차단하고 환기는 가능하기때문에

많은 분들이 탐내는 아이템 입니다




주방쪽으로 숨겨놓은 안방을 볼까요?

요즘 페밀리 침대가 유행인데

딱히 마음에 드는 가구가 없어서

블루 컬러의 샤무드 원단으로 주문제작

했습니다. 아무래도 잠자는 공간이기때문에

촉감도 신경을 쓰느라 가죽대신 원단을

선택하게 되었습니다.






침대 아래부분의 블랙 서랍장도

블랙프레임의 붙박이장과

잘 어울러졌습니다

아직 어린 아이와 함께 자는 공간이기 때문에

액자대신 세계지도 뮤럴벽지를 시공하기로 했습니다.

대신 방분위기를 헤치지 않도록

모노톤으로 선택했습니다.





거실에서 아이방으로 가려면

복도와 현관을 지나가야합니다

가는길에 복도 보고 가실께요~





철물로 기존에 만들어져 있던

중문과 싸우지 않도록

어울리는 이미지월 어떤게 있을까

고민을 하다 갤러리존을 만들기로했습니다





한톤 다운된 그레이칼라에

화이트 배경의 타이포그래피 액자로

포인트를 주고요 거실과 연결되는

우드선반으로 소품도 샤샤샥~

코디해주면 누구나 같고싶어하는

갤러리월이 됩니다





복도꿑으로는 아이방문 입니다

처름으로 가져보는 내방이라는 존재

저희는 애착문이라는 이름을 붙였어요

아이입장에서 애착이가는 공간이

될것 같았거든요





방문을 열어보지 않아도

아이가 뭘하는지 엳볼수 있는

유리도 독특한 모양을 선택했습니다





이제 아이방 안으로 들어가볼까요?

이방의 주인은 김. 찰. 리 ! 입니다

우드톤과 화이트를 베이스 칼라로 사용하고

하늘색으로 아기자기한 포인트를 줬습니다.

애착방인 만큼 이니셜정도는 새겨줘야죠

지붕아래 창문위로 영문 이니셜을

만들어 주었습니다

왠지 저 창문으로 얼굴내밀고

포토죤 해야될것 같죠?





이 귀여운 다락방은 오두막을 컨셉으로 했어요

평상과 연결된 다락방으로

평상에서 장난감을 펼쳐놀기도하고

뒹굴뒹굴 하기도 하고

아이가 신나게 놀수 있는 공간으로 꾸몄습니다





그렇다고 놀기만 하면안되겠죠?

평상과 책장을 연결해 책도 넣고

장난감 박스도 넣고

레고도 넣을 수 있는 공간을 만들었습니다.

아이들 용품은 알록달록 색이 많기 때문에

저희는 우드톤을 만들었습니다.





방문이 열리는 작은 벽면은

칠판을 만들어 주었습니다.

아이의 키 높이에 맞춰 사이즈를 적고

학습지 선생님과 자석놀이도 하고

그려놓은 그림도 걸어 놓을 수 있습니다.





자, 이렇게 네츄럴 화이트가 돋보이는

34평 신촌 이편한세상 새아파트 인테리어

보셨어요


이번 현장은 저희도 열심히 만들었지만

소품하나 그림하나 센스있게

잘 고르신 집주인 부부도 큰 힘이 됬습니다

베이스를 만들고 칼라 하나하나 덧붙여가면서

얼마나 기대가 됬었는지 여러분 상상이 되시나요?

예쁘게 꾸며놓은 집에서 부부와 찰리~ 모두

행복하세요~




다음검색
현재 게시글 추가 기능 열기

댓글

댓글 리스트
맨위로

카페 검색

카페 검색어 입력폼